perotta iberto architetti

Studio Panorama
+
-
location: Genoa, Italy
year: 2024-2025
client: private
photo: Anna Positano

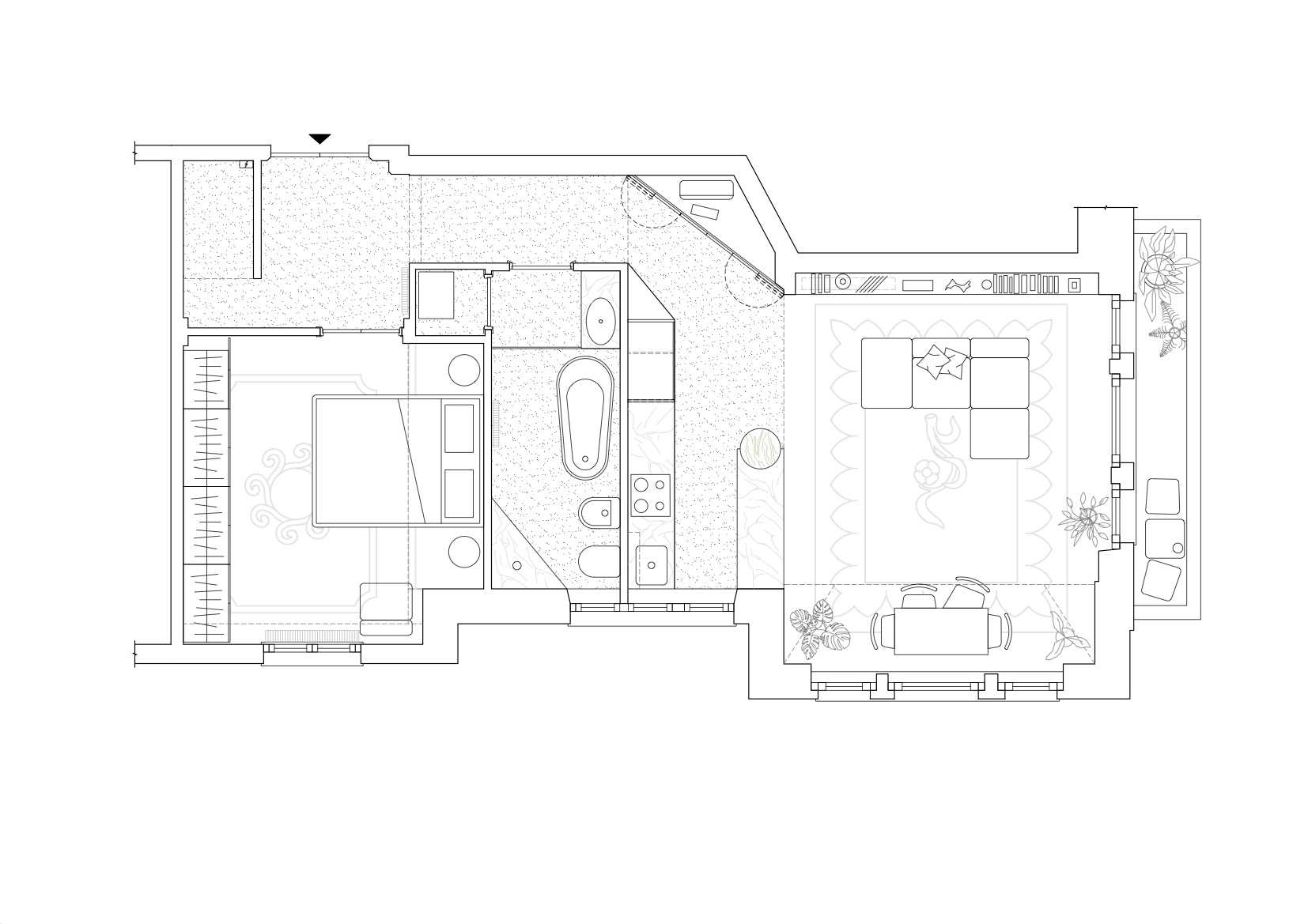
The apartment, approximately 60 square meters, is located on the penultimate floor of a large building built at the beginning of the 20th century in one of the most distinctive residential areas of Genoa.
The renovation project primarily aimed at enhancing the panoramic view of the city, focusing mainly on reorganizing the interior spaces while maintaining some of the original features of the building.
The small bathroom and the large kitchen were remodeled to create a more spacious bathroom with a bathtub and shower and a kitchenette, while the bedroom and living room remained largely unchanged.
Additionally, in one corner of the hallway, a separate study area was created with a triangular desk enclosed by six mirrored doors, capable of reflecting the external view and diffusing light throughout the corridor. The aesthetic and material choices aimed at balancing the original architecture, such as Genoese terrazzo floors, ceiling stucco work, and wooden internal doors, with the new functional needs.
The corridor, study, and kitchenette feature different colors and flooring, emphasizing their role as connections between the spaces. While the living room, bedroom, and bathroom feature various shades of white, due to the materials used, they amplify the rooms' great natural light.
In reference to the terrazzo floors, both the kitchen and bathroom include many details in Carrara marble and Siena yellow.
The result is a welcoming and bright apartment where the panoramic view of the city plays a central role in shaping the spaces.

... ... ... ... ... ... ... ... ... ... ... ... ... ... ... ... ... ... ...